Colchão Andromeda
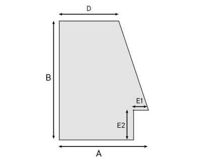
Ajuste o colchão Andromeda à sua medida, com sua forma trapezoidal à direita e canto acentuado, projetado para se adaptar aos espaços mais complexos de barcos, autocaravanas e caminhões. Este colchão oferece uma solução sob medida, garantindo um encaixe perfeito em qualquer veículo.
Personalize de acordo com o seu conforto preferido, escolhendo a densidade da espuma que melhor se adapta às suas necessidades, com opções que variam de firme a suave. Para ambientes externos ou com alta umidade, como em embarcações, recomendamos a espuma Dry-feel, que se destaca por sua capacidade de drenagem eficiente, secagem rápida e resistência ao mofo.
Se procura maior conforto, pode adicionar camadas opcionais como viscoelástica ou thermogel, que se adaptam aos seus movimentos e regulam a temperatura, proporcionando um descanso ideal durante viagens longas ou estadias prolongadas.
A capa também é feita à medida, confeccionada com materiais resistentes à água e de fácil manutenção, perfeita tanto para condições marítimas quanto para viagens terrestres.
Design Sob Medida - Qualidade Artesanal
-
Detalhes
Se você está procurando um colchão para barco, caravana ou caminhão com medidas, formas ou especificações concretas, conosco você terá a possibilidade de personalizá-lo completamente, para alcançar o descanso ideal combinando conforto, funcionalidade e design.
Para atingir o nível de conforto, suporte e estética que você precisa, diversos elementos são integrados de forma equilibrada para oferecer um colchão durável e eficiente.
Aqui explicamos os componentes-chave que garantem a funcionalidade de um bom colchão:
Material do núcleo:
- A base do colchão é feita de espumas de poliuretano, cuja firmeza varia conforme a densidade da espuma. Você pode escolher entre uma ampla gama de densidades, ajustando a firmeza do colchão de acordo com suas preferências. Para uso externo, recomendamos a espuma Dry-feel, que é altamente filtrante, de secagem rápida e com tratamento anti-mofo. Para mais detalhes, consulte a seção "Nossas espumas".
Camadas de conforto:
- Essas camadas ficam sobre o núcleo e são projetadas para adicionar maciez, se adaptar ao corpo e melhorar a experiência de descanso. Elas oferecem uma sensação agradável ao toque e são fundamentais para proporcionar ergonomia, aliviar pontos de pressão e manter uma temperatura adequada.
Viscoelástica: Ajusta-se ao contorno do corpo, aliviando pontos de pressão e minimizando movimentos durante a noite, melhorando tanto o conforto quanto a ergonomia.
Thermogel: Esta camada permite dissipar o calor corporal e manter uma temperatura mais fresca, favorecendo um descanso mais agradável.
Funda e respirabilidade:
- A funda não só traz um toque estético, mas também é essencial para a respirabilidade. Materiais como algodão ou tecidos técnicos garantem uma boa circulação de ar, evitando o acúmulo de umidade. Todas as nossas fundas são equipadas com um zíper em forma de "L", o que facilita a remoção e a lavagem na máquina. Assim, você poderá sempre desfrutar de um colchão limpo e fresco com facilidade! Se tiver dúvidas, consulte a seção "Nossas fundas".
Como você pode ver, você pode personalizar seu colchão de espuma, seja para barco, caravana ou caminhão, para adaptá-lo a qualquer necessidade ou preferência que você tenha.
Compromisso, artesanato e dedicação em cada um de nossos colchões!
-
Trusted Shops Reviews
-
Nossas Espumas
QUALIDADE PADRÃO
As nossas ESPUMAS CONVENCIONAIS são desenvolvidas para alcançar a máxima eficiência em termos de conforto e durabilidade a um custo acessível e reduzido. São fabricadas na UE de acordo com os mais elevados padrões de segurança para as pessoas e o ambiente, bem como contribuem para a responsabilidade social de garantir locais de trabalho seguros. Além disso, as nossas ESPUMAS CONVENCIONAIS não contêm cargas (aditivos sólidos que substituem a espuma real) e é por isso que lhes damos até 5 anos de garantia*




Espuma convencional 20 kg/m³ Super-macia
Espuma macia e muito suave, ideal para colchões de berço, encostos de sofá muito macios e utilizações em que tenha que ser suportado pouco peso. 2 anos de garantia.


ESPUMA MACIA
Espuma média-macia para encostos de sofá semi-macios, protetores de berço, estofos de apoio de cabeça e colchões macios muito económicos para uso ocasional. 2 anos de garantia.


ESPUMA SEMI FIRME
Espuma semi-firme para assentos de sofá semi-firmes, cadeiras, colchonetes firmes, espreguiçadeiras e colchões económicos firmes. Adequado para suportar o peso médio de um adulto. A sua densidade média torna-o adequado para uso diário contínuo. O conforto pode ser melhorado adicionando uma camada de VISCOELÁSTICO PURO ou VISCOELÁSTICO PURO CARBONO para assentos e colchões, conseguindo-se uma sensação de superfície suave sem alterar o comportamento da espuma. Ao adicionar TERMOGEL conseguirá regular a temperatura, melhorando a respirabilidade e evitando a transpiração. 3 anos de garantia.


Espuma convencional 30 kg/m³ Macia
Espuma firme (devido à sua alta densidade) mas com comportamento suave. Perfeito para assentos de sofás macios e colchões de toque macio económicos. A sua alta densidade torna-o adequado para uso intensivo. Adequado para suportar pesos de adultos leves a pesados. Recomenda-se a utilização desta espuma com uma espessura mínima de 14 cm para um comportamento perfeito de afundamento e recuperação. O conforto pode ser melhorado adicionando uma camada de VISCOELÁSTICO PURO ou VISCOELÁSTICO PURO CARBONO para assentos e colchões, conseguindo-se uma sensação de superfície suave sem alterar o comportamento da espuma. Ao adicionar TERMOGEL conseguirá regular a temperatura, melhorando a respirabilidade e evitando a transpiração. 4 anos de garantia.


ESPUMA FIRME
Espuma firme (devido à sua alta densidade) com comportamento firme. Para assentos de sofás firmes, cadeiras, colchões económicos firmes, pufes e usos semelhantes. A sua alta densidade torna-o adequado para uso intensivo. Adequado para pesos de adultos médios a pesados. O seu acabamento pode ser melhorado com uma camada de VISCOELÁSTICO PURO ou VISCOELÁSTICO PURO CARBONO para assentos e colchões. Ao adicionar TERMOGEL conseguirá regular a temperatura, melhorando a respirabilidade e evitando a transpiração. 4 anos de garantia.


ESPUMA EXTRA DURA
Espuma extra firme para pufes, assentos extra firmes, colchonetes desportivos e usos semelhantes. A sua alta densidade torna-o adequado para uso intensivo. Adequado para espumas com pouca espessura que têm de suportar pesos médios a pesados. O conforto pode ser melhorado adicionando uma camada de VISCOELÁSTICO PURO ou VISCOELÁSTICO PURO CARBONO para assentos e colchões, conseguindo-se uma sensação de superfície suave sem alterar o comportamento da espuma. Ao adicionar TERMOGEL conseguirá regular a temperatura, melhorando a respirabilidade e evitando a transpiração. 5 anos de garantia.
QUALIDADE SUPERIOR
As nossas ESPUMAS HR SUPERIOR (HR ou High Resilience) são espumas muito flexíveis com uma elevada capacidade de recuperação. Foram desenvolvidas para alcançar a máxima eficácia no conforto e durabilidade para utilização em estofos e artigos de descanso. São fabricadas na UE de acordo com os mais elevados padrões de segurança para as pessoas e o ambiente, bem como contribuem para a responsabilidade social de garantir locais de trabalho seguros. Além disso, as nossas ESPUMAS HR SUPERIOR não contêm cargas (aditivos sólidos que substituem a espuma real) e é por isso que lhes damos até 10 anos de garantia*




Espuma superior HR 20 kg/m³ Super-macia
Espuma de alta recuperação muito suave com "toque de penas", ideal para utilizações onde não tem de suportar muito peso e se deseja um toque suave e confortável, como colchões de berço, encostos de sofá muito macios e utilizações semelhantes. Apesar da sua baixa densidade, a sua fórmula HR torna-a altamente durável para os usos descritos. Recomenda-se a utilização desta espuma com uma espessura mínima de 15 cm (10 cm para berço) para um comportamento perfeito de afundamento e recuperação. 3 anos de garantia.


ESPUMA MACIA
Espuma de alta recuperação de firmeza média-macia para encostos firmes de sofás, assentos de sofá macios e colchões macios de primeira qualidade. A sua alta densidade torna-a adequada para uso intensivo com elevada durabilidade, adequado para suportar pesos de adultos leves a elevados. Recomenda-se a utilização desta espuma com uma espessura mínima de 14 cm para um comportamento perfeito de afundamento e recuperação. O conforto pode ser melhorado adicionando uma camada de VISCOELÁSTICO PURO ou VISCOELÁSTICO PURO CARBONO para assentos e colchões, conseguindo-se uma sensação de superfície suave sem alterar o comportamento da espuma. Ao adicionar TERMOGEL conseguirá regular a temperatura, melhorando a respirabilidade e evitando a transpiração. 4 anos de garantia.


ESPUMA SEMI FIRME
Espuma de alta recuperação de firmeza semi-firme para assentos de sofá e colchões firmes e de qualidade superior. A sua alta densidade torna-a adequada para uso intensivo com elevada durabilidade, adequado para suportar pesos de adultos leves a elevados. Recomenda-se a utilização desta espuma com uma espessura mínima de 12 cm. para um comportamento perfeito de afundamento e recuperação. O conforto pode ser melhorado adicionando uma camada de VISCOELÁSTICO PURO ou VISCOELÁSTICO PURO CARBONO para assentos e colchões, conseguindo-se uma sensação de superfície suave sem alterar o comportamento da espuma. Ao adicionar TERMOGEL conseguirá regular a temperatura, melhorando a respirabilidade e evitando a transpiração. 4 anos de garantia.


ESPUMA FIRME
Espuma firme de alta recuperação, para assentos de sofás e colchões firmes de qualidade superior. A sua alta densidade torna-a adequada para uso intensivo com elevada durabilidade, adequado para suportar pesos de adultos leves a elevados. Recomenda-se a utilização desta espuma com uma espessura mínima de 10 cm para um comportamento perfeito de afundamento e recuperação. O conforto pode ser melhorado adicionando uma camada de VISCOELÁSTICO PURO ou VISCOELÁSTICO PURO CARBONO para assentos e colchões, conseguindo-se uma sensação de superfície suave sem alterar o comportamento da espuma. Ao adicionar TERMOGEL conseguirá regular a temperatura, melhorando a respirabilidade e evitando a transpiração. 5 anos de garantia.


Espuma superior Comfort bultex HR 32 kg/m³ Macia
Espuma "PREMIUM" de alta recuperação e durabilidade com comportamento suave para encostos firmes de sofá e assentos de sofá macios de qualidade extra. A sua alta densidade torna-a adequada para uso intensivo com elevada durabilidade, adequado para suportar pesos de adultos leves a elevados. Recomenda-se a utilização desta espuma com uma espessura mínima de 14 cm para um comportamento perfeito de afundamento e recuperação. O conforto pode ser melhorado adicionando uma camada de VISCOELÁSTICO PURO ou VISCOELÁSTICO PURO CARBONO para assentos, colchonetes camper, etc... conseguindo uma sensação de superfície macia sem alterar o comportamento da espuma. Ao adicionar TERMOGEL conseguirá regular a temperatura, melhorando a respirabilidade e evitando a transpiração. Por razões contratuais, não temos autorização do proprietário da marca para comercializar "COMFORT BULTEX" para utilização em colchões em Espanha. 5 anos de garantia.


Espuma superior Comfort bultex HR 38 kg/m³ Média
Espuma "PREMIUM" de alta recuperação e durabilidade, com comportamento semi-firme, para assentos de sofá extra firmes de qualidade extra. A sua alta densidade torna-a adequada para uso intensivo com elevada durabilidade, adequado para suportar pesos de adultos leves a elevados. Recomenda-se a utilização desta espuma com uma espessura mínima de 12 cm. para um comportamento perfeito de afundamento e recuperação. O conforto pode ser melhorado adicionando uma camada de VISCOELÁSTICO PURO ou VISCOELÁSTICO PURO CARBONO para assentos, colchonetes camper, etc... conseguindo uma sensação de superfície macia sem alterar o comportamento da espuma. Ao adicionar TERMOGEL conseguirá regular a temperatura, melhorando a respirabilidade e evitando a transpiração. Por razões contratuais, não temos autorização do proprietário da marca para comercializar "COMFORT BULTEX" para utilização em colchões em Espanha. 7 anos de garantia.


Espuma superior Confort Bultex HR 42 kg/m³ Firme
Espuma "PREMIUM" de alta recuperação e durabilidade, com comportamento firme para assentos de sofás semi-firmes de qualidade extra. A sua alta densidade torna-a adequada para uso intensivo com longa durabilidade, adequada para adultos com pesos leves a elevados. Recomenda-se a utilização desta espuma com uma espessura mínima de 10 cm para um comportamento perfeito de afundamento e recuperação. O conforto pode ser melhorado adicionando uma camada de VISCOELÁSTICO PURO ou VISCOELÁSTICO PURO CARBONO para assentos, colchonetes camper, etc... conseguindo uma sensação de superfície macia sem alterar o comportamento da espuma. Ao adicionar TERMOGEL conseguirá regular a temperatura, melhorando a respirabilidade e evitando a transpiração. Por razões contratuais, não temos autorização do proprietário da marca para comercializar "COMFORT BULTEX" para utilização em colchões em Espanha. 10 anos de garantia.
ESPUMAS PARA FINS ESPECIAIS
As nossas ESPUMAS DE USO ESPECÍFICO foram desenvolvidas para satisfazer diferentes necessidades, tais como resistência ao fogo e propriedades auto-extinguíveis, fungicidas, bactericidas e filtrantes de água e ar. Estas características específicas são garantidas por ensaios de laboratórios independentes homologados, que certificam estas espumas para utilização em áreas públicas ou privadas. São fabricadas na UE de acordo com os mais elevados padrões de segurança para as pessoas e o ambiente, bem como contribuem para a responsabilidade social de garantir locais de trabalho seguros. Além disso, as nossas ESPUMAS DE USO ESPECÍFICO não contêm cargas (aditivos sólidos que substituem a espuma real) e é por isso que lhes damos até 10 anos de garantia*




ESPUMA FILTRANTE
Espuma de alta filtragem de água e secagem muito rápida, com tratamento anti-mofo, especialmente adequada para estofos de exterior como JARDINS, PISCINAS ou COBERTURAS PARA BARCOS. Para uma drenagem mais eficaz da água e uma secagem mais rápida recomendamos que a parte inferior e não visível da cobertura seja de GRELHA FILTRANTE. 4 anos de garantia.


ESPUMA RESPIRÁVEL
Espuma altamente respirável com elevada circulação de ar no interior e com tratamento anti-mofo, especialmente adequada para COLCHÕES CAMPER, CARAVANAS, BELICHES, ou CAMIÕES. Para uma circulação de ar mais eficaz e para evitar a acumulação de calor, recomendamos que o tecido da capa seja da coleção SILVERSTONE ou AIR-3D. O conforto pode ser melhorado com suavidade na superfície “toque seda” adicionando TERMOGEL, que melhora a regulação da temperatura, aumenta a respirabilidade e evita a transpiração. 4 anos de garantia.


Espuma de uso específico 25 kg. FR Ignífuga
Espuma IGNÍFUGA CERTIFICADA semi-firme, para assentos de sofá semi-firmes, colchonetes firmes, espreguiçadeiras e colchões firmes. Adequado para suportar o peso médio de um adulto. A sua densidade média torna-a adequada para uso diário contínuo. O conforto pode ser melhorado adicionando uma capa de VISCOELÁSTICO PURO para assentos e colchões, conseguindo uma sensação de superfície suave sem alterar o comportamento da espuma. Ao adicionar TERMOGEL conseguirá regular a temperatura, melhorando a respirabilidade e evitando a transpiração. 3 anos de garantia.


Espuma de uso específico HR 40 kg/m³ CMHR Ignífuga
Espuma IGNÍFUGA CERTIFICADA (CMHR40) de alta recuperação dura, para assentos de sofás e colchões firmes de qualidade superior. A sua alta densidade torna-a adequada para uso intenso com elevada durabilidade, adequada para adultos leves a pesados. Recomenda-se a utilização desta espuma com uma espessura mínima de 10 cm. para um comportamento perfeito de afundamento e recuperação. O conforto pode ser melhorado adicionando uma capa de VISCOELÁSTICO PURO para assentos e colchões, conseguindo uma sensação de superfície suave sem alterar o comportamento da espuma. Ao adicionar TERMOGEL conseguirá regular a temperatura, melhorando a respirabilidade e evitando a transpiração. 5 anos de garantia.
Acabamentos que melhoram a espuma
As nossas ESPUMAS E FIBRAS DE ACABAMENTO foram desenvolvidas para melhorar o conforto e proporcionar às espumas propriedades tais como respirabilidade, regulação da temperatura, eliminação de odores, prevenção da transpiração, estética de suavidade arredondada e facilitar a colocação e a remoção das capas. O nosso configurador inteligente exclusivo ESPUMAPORMEDIDA.COM foi desenvolvido para lhe oferecer a possibilidade de aplicar estes acabamentos opcionais apenas nas espumas, formas e espessuras adequadas evitando, assim, configurações erradas. O nosso conselho é acrescentar estes acabamentos se o configurador os oferecer, não errará e melhorará muito o seu conforto. Estas ESPUMAS E FIBRAS DE ACABAMENTO são fabricadas com as mesmas exigências e padrões de qualidade que as nossas ESPUMAS CONVENCIONAIS e as nossas ESPUMAS HR SUPERIORES e têm a mesma garantia* que a espuma escolhida como base.




Acabamento com VISCOELASTICO PURO 52 kg/m³
Espuma VISCOELÁSTICA PURA extra macia e super suave com elevado conforto, ideal como camada superior para todos os tipos de colchões, colchonetes e assentos de sofá para uma perfeita adaptabilidade ao corpo. O nosso configurador inteligente exclusivo ESPUMAPORMEDIDA.COM foi desenvolvido para lhe oferecer a possibilidade de aplicar VISCOELÁSTICO PURO apenas com as espumas e espessuras adequadas evitando, assim, configurações incorretas. Se quiser melhorar o seu conforto, recomendamos que aplique VISCOELÁSTICO PURO se o configurador o oferecer e, quanto maior espessura tiver o VISCOELASTICO PURE, maior será o conforto.


Acabamento com VISCOELÁSTICO PURO CARBONO 52 kg/m³
Espuma VISCOELÁSTICA PURA CARBONO extra macia e súper suave com elevado conforto, ideal como camada superior para todo o tipo de colchões, colchonetes e assentos de sofá para uma perfeita adaptabilidade do corpo. As partículas de CARBONO ATIVADO melhoram a sensibilidade térmica evitando o excesso de calor, bem como a eliminação de odores. O nosso configurador inteligente exclusivo ESPUMAPORMEDIDA.COM foi desenvolvido para lhe oferecer a possibilidade de aplicar VISCOELÁSTICO PURO CARBONO apenas com as espumas e espessuras adequadas evitando, assim, configurações erradas. Se quiser melhorar o seu conforto, recomendamos que aplique VISCOELÁSTICO PURO CARBONO se o configurador o oferecer, e quanto maior espessura tiver o VISCOELÁSTICO CARBONO, maior será o conforto.


Acabamento com TERMOGEL 52 kg/m³
Espuma de alta densidade com partículas de gel com um toque extra macio e sedoso. A sua estrutura celular de poro completamente aberto confere-lhe valores extraordinários de respirabilidade e permeabilidade à humidade, tornando-a a melhor escolha como regulador de temperatura, dissipando o calor e impedindo a transpiração. É ideal como camada de contacto final em cima do VISCOELÁSTICO PURO ou VISCOELÁSTICO PURO CARBONO, ou diretamente sobre ESPUMAS SUPERIORES HR, COMFORT BULTEX HR, ou espumas convencionais. O nosso configurador inteligente exclusivo ESPUMAPORMEDIDA.COM foi desenvolvido para lhe oferecer a possibilidade de aplicar TERMOGEL apenas com as espumas adequadas evitando, assim, configurações erradas. Se deseja melhorar o seu conforto, recomendamos que aplique TERMOGEL se o configurador o oferecer.


Acabamento com FIBRA DE ENCHIMENTO 200 gr/m².
A FIBRA DE ENCHIMENTO 200 gr/m² oca siliconada dá ao nosso sofá ou colchão uma suavidade arredondada, além de facilitar o deslizamento da capa. A aplicação de FIBRA DE ENCHIMENTO 200 gr/m² não interfere em nada com as camadas superiores de espumas especiais como TERMOGEL, VISCOELÁSTICO PURO ou VISCOELÁSTICO PURO CARBONO, uma vez que apenas cria um espaço de ar de 97 % que se elimina à menor pressão, de modo que, quando em contacto com o nosso sofá ou colchão, estaremos a desfrutar dos valores e propriedades da nossa espuma. O nosso configurador inteligente exclusivo ESPUMAPORMEDIDA.COM foi desenvolvido para lhe oferecer a possibilidade de aplicar FIBRA 150 gr/m² apenas com as espumas adequadas evitando, assim, configurações erradas. Se desejar melhorar o aspeto visual, bem como a facilidade de colocar e remover as capas da sua espuma recomendamos que aplique FIBRA 200 gr/m² se o configurador o oferecer. A aplicação de FIBRA DE ENCHIMENTO 200 gr/m² evita a possível transparência da cor da espuma em capas com tecidos muito claros.


Acabamento com FIBRA-TEX 300 gr/m²
A FIBRA-TEX 300 gr/m² oca siliconada com tecido 100 % poliéster dá ao nosso sofá ou colchão uma suavidade arredondada, facilitando o deslizamento da capa. O tecido 100 % poliéster laminado sobre a fibra atua como uma capa interior. Esta fibra é cosida sobre a espuma evitando, assim, adesivos químicos. A aplicação de FIBRA-TEX 300 gr/m² não interfere em nada com as camadas superiores de espumas especiais como TERMOGEL, VISCOELÁSTICO PURO ou VISCOELÁSTICO PURO CARBONO, uma vez que apenas cria um espaço de 95 % de ar que é eliminado à menor pressão de modo que, ao estar em contacto com o nosso sofá ou colchão, estaremos a desfrutar dos valores e propriedades da nossa espuma. O nosso configurador inteligente exclusivo da ESPUMA POR MEDIDA.COM foi desenvolvido para lhe oferecer a possibilidade de aplicar FIBRA-TEX 300 gr/m² apenas com as espumas adequadas evitando, assim, configurações erradas. Se desejar melhorar o aspeto visual, bem como a facilidade de colocar e remover a capa da sua espuma recomendamos que aplique FIBRA-TEX 300 gr/m² se o configurador o oferecer. A aplicação de FIBRA-TEX 300 gr/m² evita a possível transparência da cor da espuma em capas com tecidos muito claros.
* A garantia cobre defeitos de materiais, não a deterioração provocada por uso indevido.
**As cores apresentadas das diferentes espumas e acabamentos não são vinculativas, uma vez que podem variar de acordo com os lotes.
-
As nossas capas
NOSSAS CAPAS
Na Espuma por Medida, utilizamos tecidos, têxteis e materiais de alta qualidade que conferem propriedades excepcionais aos nossos produtos. Graças às suas características, garantimos que manterão sua durabilidade e permanecerão em condições ideais por muito tempo. Projetamos produtos para durar. Oferecemos tecidos de primeira linha, com acabamentos antimanchas, proteção contra raios UV para resistir ao sol e, além disso, muitos deles são laváveis na máquina para facilitar seus cuidados.
A confecção de nossas capas também é premium, garantindo que seu produto não apenas tenha uma aparência excelente por fora, mas também ofereça uma qualidade superior por dentro.
As características premium do nosso tipo de confecção são:- - Zíper oculto com abas para um acabamento discreto
- - Zíper em forma de U, projetado para colocar e retirar a capa de maneira rápida e fácil.
- - As fitas ou laços são confeccionados com o mesmo tecido do cushion para um acabamento uniforme e elegante.
- - Seleção de base filtrante ou antideslizante, conforme sua necessidade: uma opção que permite evacuar a água ou uma base que assegura que o cushion não se desloque, costurada com uma margem de tecido para evitar que apareça por baixo.
- - Costuras com viés, elaboradas com o mesmo tecido da capa, com a opção de escolher uma cor contrastante para um toque personalizado.
- - Costura embutida, um tipo de acabamento moderno e contemporâneo que adiciona um toque atual ao design.
Para confeccionar sua capa, você poderá escolher entre mais de 400 opções, ajustadas às suas necessidades conforme o uso que dará (exterior, interior, colchão), a cor, os mais vendidos, nível de preços e as diferentes coleções disponíveis. Facilitamos a seleção do tecido através de filtros personalizados para nos adaptarmos melhor às suas preferências.
Há alguns detalhes importantes que você deve ter em mente sobre nossas capas:
-Por padrão, colocamos o zíper no lado mais longo para facilitar a colocação e retirada. Em cushions de assento, o zíper ficará na parte de trás, tocando a parede; em encostos, ficará na parte inferior. Se preferir que esteja em outro lugar, basta nos enviar um esboço.
• Escolhemos um zíper da cor que melhor combina com o tecido. Para produtos de exterior, utilizamos zíperes especialmente projetados para resistir às condições externas.
• Se sua peça medir mais de 140 cm x 200 cm, a capa terá uma ou duas costuras adicionais para unir o tecido.
• Se você já pediu capas anteriormente e volta a pedir o mesmo tecido, pode haver pequenas diferenças de cor devido às variações na coloração de diferentes lotes de fabricação. Por isso, recomendamos que, se precisar de várias capas, as peça todas juntas para garantir a maior uniformidade possível.
• Quando o tecido exige, realizamos um overlock para evitar que se desfie e garantir um acabamento durável.
Se tiver alguma dúvida, nosso departamento comercial está à disposição para atendê-lo por e-mail. Não hesite em nos consultar! -
Galeria de fotos do cliente
Não há fotos disponíveis nesta loja


N1 na Espanha


Garantia e Qualidade


100% personalizado


Transporte


Pagar